寬槽型振動給煤機簡介
GZGKM系列寬槽型振動給煤機是選煤廠振動篩或跳汰機前給料的一種節能型給煤機。該機由新型振動電機直接驅動、結構簡單緊湊、便于窄小空間布置安裝;給煤連續均勻,配用電控箱,可實現給煤量的任意調節。本機也廣泛應用于煤炭、冶金、建材、化工、輕工等行業的篩前給料或者有布料要求的工藝中。

寬槽型振動給煤機技術參數
| GZGKM-120 | GZGKM-160 | GZGKM-180 | GZGKM-200 | GZGKM-220 | GZGKM-280 | GZGKM-320 |
給料機寬度(mm) | 1200 | 1600 | 1800 | 2000 | 2200 | 2800 | 2300 |
給料粒度(mm) | 0-120 | 0-120 | 0-120 | 0-120 | 0-120 | 0-120 | 0-120 |
給料量(t/h) | 100-150 | 100-175 | 100-200 | 15-225 | 150-250 | 200-300 | 200-350 |
功率(kw) | 2×1.50 | 2×1.50 | 2×2.20 | 2×2.20 | 2×2.20 | 2×3.70 | 2×3.70 |
電機型號 | YZO-20-6 | YZO-20-6 | YZO-30-6 | YZO-30-6 | YZO-30-6 | YZO-50-6 | YZO-50-6 |
振頻(Hz) | 16 | 16 | 16 | 16 | 16 | 16 | 16 |
振幅(mm) | 4-6 | 4-6 | 4-6 | 4-6 | 4-6 | 4-6 | 4-6 |
安裝傾角 | 0°-10° | 0°-10° | 0°-10° | 0°-10° | 0°-10° | 0°-10° | 0°-10° |
總重(kg) | 800 | 920 | 1200 | 1370 | 1480 | 1800 | 1970 |
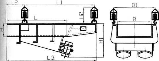
外形圖

外形尺寸
| GZGKM-120 | GZGKM-160 | GZGKM-180 | GZGKM-200 | GZGKM-220 | GZGKM-280 | GZGKM-320 |
B | 1200 | 1600 | 1800 | 2000 | 2200 | 2800 | 3200 |
B1 | 1250 | 1650 | 1850 | 2050 | 2250 | 2850 | 3250 |
H | 300 | 300 | 300 | 300 | 300 | 300 | 300 |
H1 | 900 | 900 | 950 | 950 | 950 | 1030 | 1030 |
H2 | -550 | -550 | -600 | -600 | -600 | -700 | -700 |
L | 1600 | 1600 | 1600 | 1600 | 1600 | 1600 | 1600 |
L1 | 1900 | 1900 | 1900 | 1850 | 1850 | 1850 | 1750 |
L2 | 250 | 250 | 250 | 300 | 300 | 300 | 400 |
L3 | 2200 | 2200 | 2200 | 2200 | 2200 | 2200 | 2200 |